Why Building Code Compliance Is Still Manual in Architecture

Building code compliance is still largely manual in architecture.

Most firms review code by reading PDFs, cross-referencing tables, and checking designs by hand. There is no widely adopted system that evaluates code directly inside the BIM model during design.

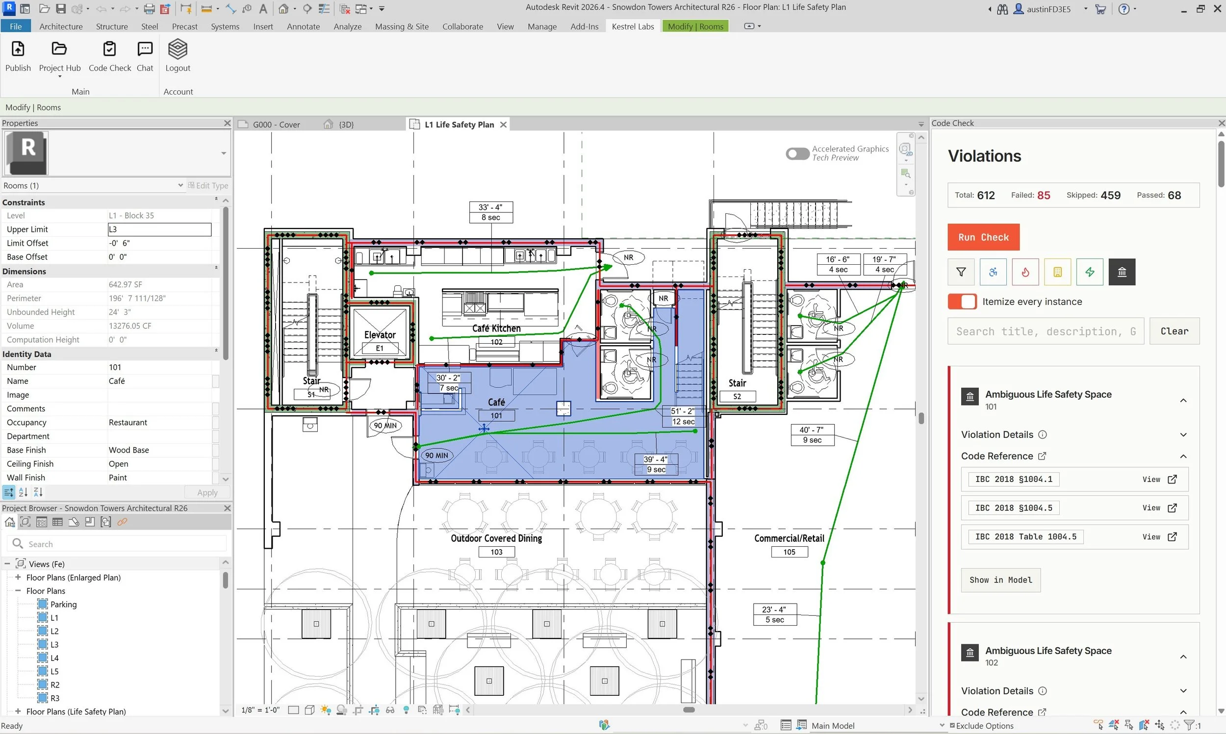
Building code compliance issues identified inside a Revit model during design

Building code compliance evaluated directly in the model, instead of after drawings are complete.

How compliance actually works today

In most projects, code compliance is handled outside the model:

  • Architects interpret building code manually

  • Teams cross-reference drawings against written requirements

  • Code consultants review assumptions late in the process

  • Small design changes trigger hours of rechecking

By the time issues are identified, they are often embedded in layouts, coordination, and documentation.

Why software hasn’t solved this

This isn’t just a lack of tools. It’s a structural problem.

Building code exists as legal text.
Design exists as spatial geometry inside a BIM model.

Bridging those two requires:

  • interpreting written requirements

  • mapping them to geometry

  • evaluating relationships between elements

That translation has historically been too complex to automate in a meaningful way.

Why plan review tools don’t fix the problem

Some tools do exist today for building code compliance.

Most of them operate on exported drawing sets, reviewing PDFs to identify coordination issues and inconsistencies across sheets.

These tools can catch problems.

But they operate after design decisions are already made.

By that point:

  • layouts are set

  • systems are coordinated

  • documentation is underway

A compliance issue at this stage is no longer a small fix.

It’s rework.

The problem isn’t just whether issues are caught.
It’s when they’re caught.

What’s changing now

That timing is starting to shift.

Instead of checking compliance after design, teams can begin evaluating it directly against the model.

This is what’s referred to as model-based building code compliance.

From downstream review to in-model evaluation

Traditionally, compliance is something that happens at the end of the process.

Now, it’s beginning to move earlier—into the design phase itself.

Instead of reviewing drawings after the fact, teams can evaluate compliance continuously as the model evolves.

We break down this shift in more detail here: How building code compliance is moving into the model

Where the market is now

There are tools emerging that attempt to address this problem, but the category is still developing.

Most solutions either:

  • operate on drawings after export

  • or require heavy customization to check specific conditions

We outline the current landscape here: What tools exist for building code compliance in Revit

What this means

The core issue hasn’t been a lack of awareness or effort.

It’s been the absence of a system that can interpret building code and evaluate it directly against the model during design.

That is what is now becoming possible.

If you want to see how this works in practice:

Schedule a demo →

Previous
Previous

Kestrel Labs Named Trimble 0–60 Finalist as Momentum Builds Around Model-Based Code Compliance

Next
Next

ArchiCheck AI Is Kestrel Labs